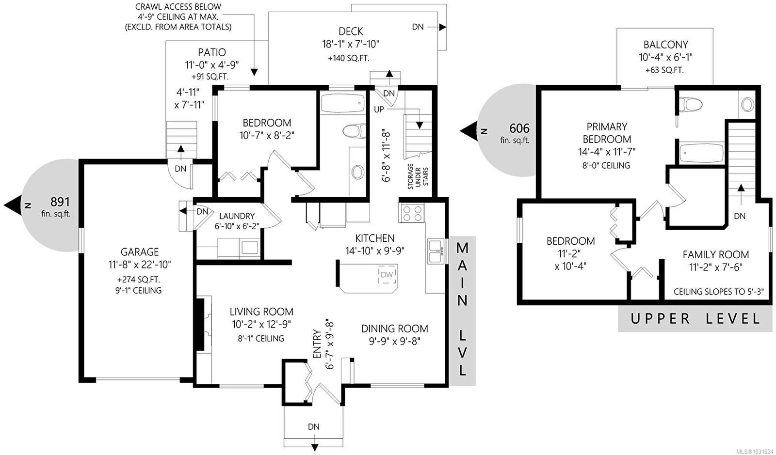
This charming, updated character home in Central Nanaimo is a fantastic opportunity for first-time buyers or young couples looking to enter the market without compromising on style or location. Set in a vibrant, walkable neighbourhood close to all levels of schools, Bowen Park, the Old City Quarter, waterfront parks, shopping, and restaurants, it offers an ideal blend of lifestyle and convenience. The main level features original hardwood floors and a bright, open layout with a well-appointed kitchen offering plenty of cabinetry, flowing seamlessly into the dining and living areas, perfect for everyday living and entertaining. The cozy gas fireplace adds warmth and character, while a bedroom, full bathroom, and a laundry/mudroom with access to the garage provide excellent functionality. Upstairs, you’ll find newer flooring throughout the entire level, along with a spacious primary suite complete with a walk-in closet, 4-piece ensuite, and a private balcony with a peek-a-boo ocean view, a wonderful place to enjoy your morning coffee. A second bedroom and versatile landing area offer additional space for a home office, play area, or reading nook. The fully fenced backyard provides a private setting with room to relax, garden, or entertain, ideal for pets or summer gatherings. With thoughtful updates over the years, including vinyl windows and renovated kitchen and bathrooms, this home is move-in ready. A wonderful opportunity to step into homeownership in a sought-after location. Don’t miss it! All measurements are approximate and must be verified if important.
Address
250 Harvey St
List Price
$669,900
Property Type
Residential
Type of Dwelling
Single Family Residence
Style of Home
Character
Transaction Type
Sale
Area
Nanaimo
Sub-Area
Na University District
Bedrooms
3
Bathrooms
2
Floor Area
1,497 Sq. Ft.
Lot Size
3764 Sq. Ft.
Lot Size (Acres)
0.08 Ac.
Year Built
1913
MLS® Number
1031624
Listing Brokerage
Royal LePage Nanaimo Realty (NanIsHwyN)
Basement Area
Crawl Space
Postal Code
V9R 3W7
Tax Amount
$4,291.00
Tax Year
2025
Features
Baseboard, Closet Organizer, Dining/Living Combo, Electric, Mixed, Vinyl Frames
Amenities
Balcony/Deck, Balcony/Patio, Central Location, Easy Access, Family-Oriented Neighbourhood, Fenced, Fencing: Full, Garden, Ground Level Main Floor, Landscaped, Marina Nearby, Recreation Nearby, Serviced, Shopping Nearby





















































